(For sale $1,314,000 - Fixed Price & Full Turnkey Inclusions)
(Sold price $1,314,000 - Fixed Price & Full Turnkey Inclusions)
(RENT $1,314,000 - Fixed Price & Full Turnkey Inclusions PER WEEK)

Lot 614, Langton Street, ROWVILLE, VIC, 3178, Australia

465
4 bed
2 bath
2 car
BOND
AVAILABLE DATE
Inspection times
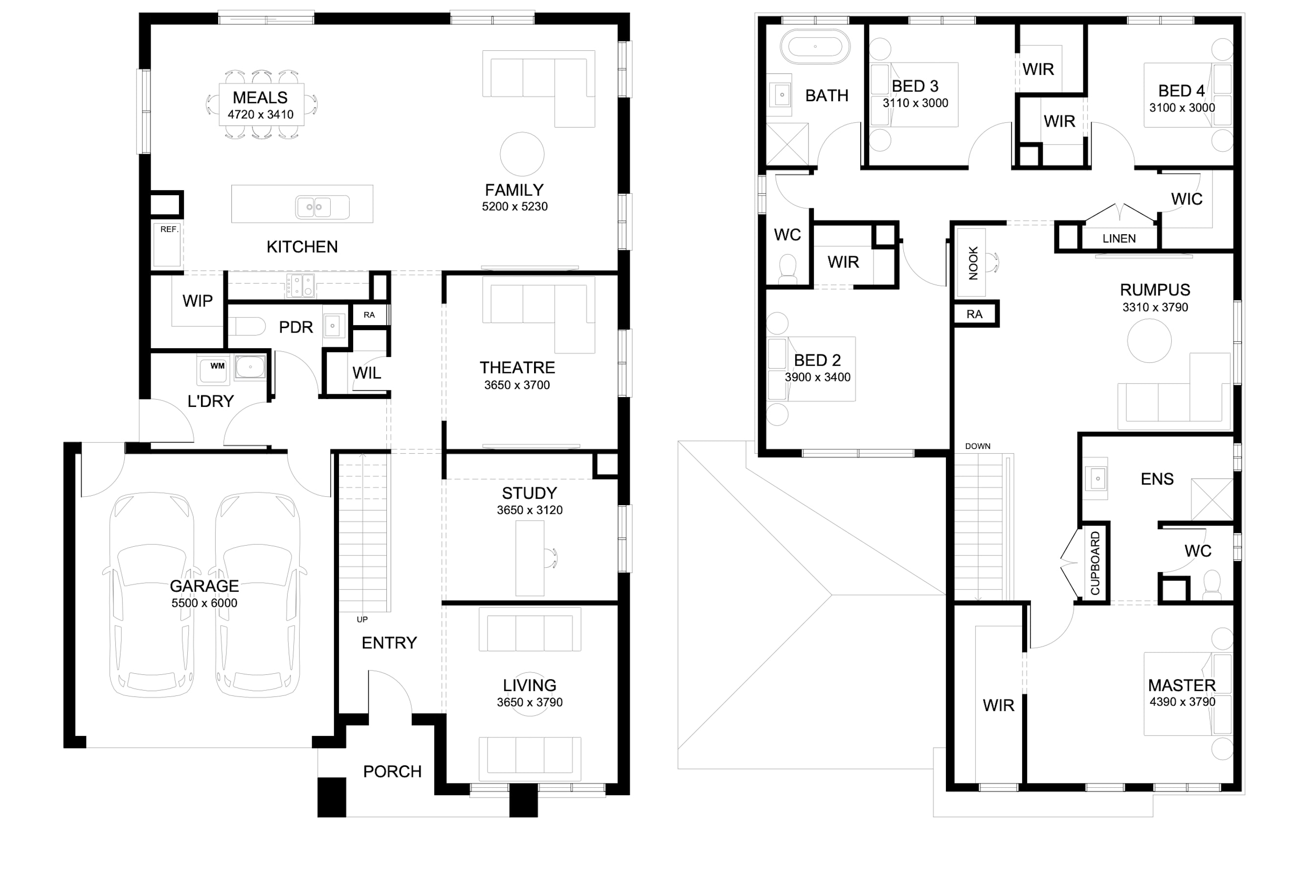
Floorplan
VIDEO
Designed for growing families and smart investors alike, this impressive double-storey home offers a perfect balance of space, style, and functionality. With multiple living zones, a theatre, study, and an upstairs rumpus, every member of the family has room to relax and thrive.

Key Features:

- 4 generous bedrooms, including master suite with walk-in robe and ensuite
- Expansive open-plan kitchen, dining, and family area
- Dedicated theatre room for entertainment
- Private study ideal for work-from-home setup
- Upstairs rumpus room offering additional living flexibility
- Walk-in pantry and ample storage throughout
- Double garage with internal access
- Spacious 465sqm block with a build area of 322sqm

This fixed Price Home and Land Package Includes:

- Fixed price site costs.
- Landscaping to front: Includes a dripper irrigation system with a battery operated timer so no need to worry about time consuming maintenance.
- Rear landscaping: Includes mulched garden beds with trees or plants to rear boundary, turf and topping to remainder of the land to rear and side boundaries with a dripper system connected to the tap.
- Fencing: Full share fencing to sides and rear boundaries as well as a side gate to comply with the developers guidelines.
- Coloured concrete driveway.
- Fold away the clothesline with a coloured concrete pad.
- Concrete letterbox to suit house type and meet the design guidelines of the estate.
- Timber Laminate Flooring and Carpet, and tiles to wet areas.
- Heating and Cooling
- Hollands blinds throughout
- Flyscreens to all windows
- Sliding flywire doors
- Stainless steel 900mm Kitchen appliances
- 2580mm High ceilings
- Stainless dishwasher
- Stone benchtops to kitchen
- Tiled shower bases
- Downlights throughout
- Alarm system including sensors and keypad to entry
- Bushfire Attack 12.5 if required
- A re-establishment survey of the block if required
- Gold, Black or Chrome tapware to kitchen
- Council infrastructure levy if required
- Brickwork above all windows and doors i.l.o FC Sheet (excludes above garage door)
- Facade render when required for Developer Approval
- All Developer requirements
- Temporary fencing during build
- All Occupational Health & Safety build requirements

Nestled in the leafy suburb of Rowville, Bankside Estate is a master-planned community where nature, design, and lifestyle come together. Surrounded by the tranquil Corhanwarrabul Creek and 40 hectares of landscaped parklands and walking trails, Bankside delivers a unique sense of calm within minutes of urban convenience.

Estate highlights:

- Over 40% of the community dedicated to green space and wetlands
- Expansive parklands, children’s adventure playground, skate zone, and BBQ areas
- Scenic walking and cycling paths along Corhanwarrabul Creek
- Easy access to Stud Park Shopping Centre, Rowville Secondary College, and local schools
- Convenient connectivity to Eastlink, Monash Freeway, and major arterial roads
- Approximately 35 minutes to Melbourne’s CBD

Bankside Estate offers a fresh perspective on suburban living - peaceful, connected, and designed for families to grow.

(AGENT)

view other properties